Biel, Schweizerbodenweg 7

Umnutzung, Umbau, Sanierung bestehender Anbau Baujahr 1976


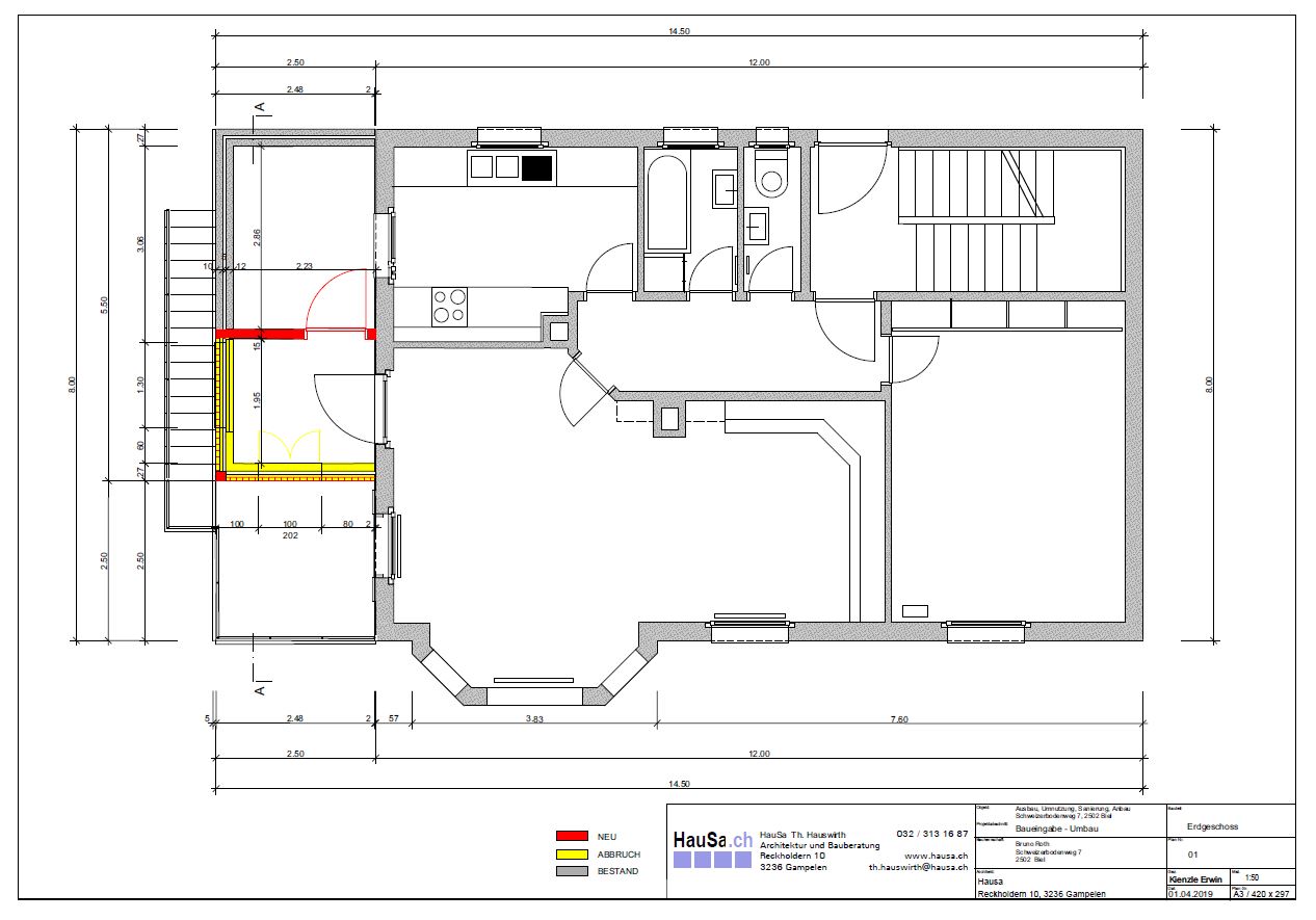
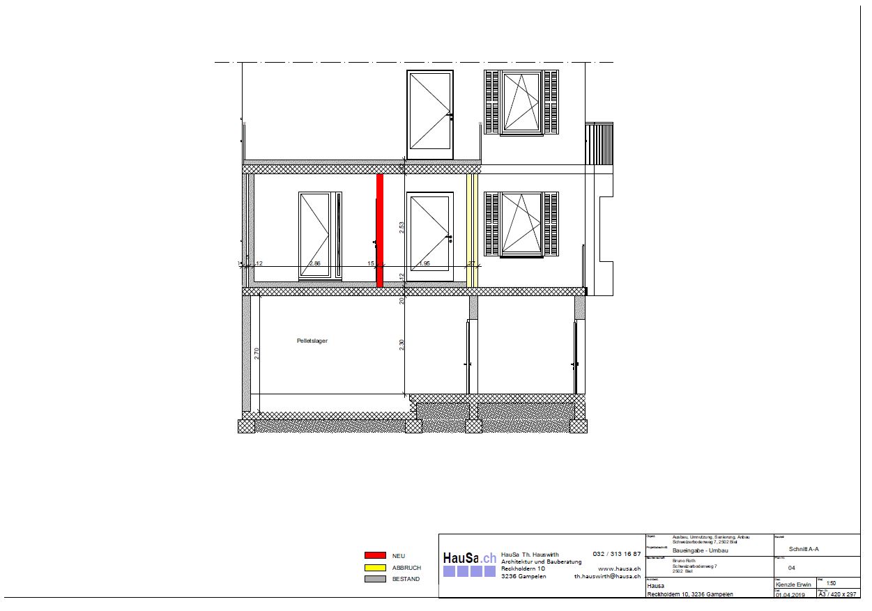
Die Bauherrschaft wünschte den bestehenden Abstellraum zu verkleinern und zu sanieren.
Umbau zur Nutzung als Küchen-Reduit / Vorrats-Raum und die restliche Fläche als gedeckten Sitzplatz zu nutzen.

Gleichzeitig wurde die Fassade und der darüberliegende Balkon saniert. Da die Liegenschaft nur über Fusswege erreichbar ist, wurde das Material für Baumeister und Flachdachbauer mit Helikopter- Flügen transportiert.

 

roth biel be eg roth biel fassade roth biel schnitt

 

nivo nivo nivo nivo nivo nivo

Roth, Biel

vor Umbau.

Roth, Biel

vor Umbau.

Roth, Biel

nach Umbau.

Roth, Biel

nach Umbau.

Roth, Biel

nach Umbau.

Roth, Biel

nach Umbau.